Register your Interest

حيث تنساب الحياة بانسجام تام

حيث يلتقي سحر المياه بجمال العيش العصري. تقع كانال سايد مارينا ريزيدنسز على امتداد القناة المائية المؤدية إلى البحر العربي، لتمنحك إطلالات خلابة على المرسى والحدائق المحيطة، وتجربة سكنية تنبض بالحيوية والهدوء في آنٍ واحد.

اختر من بين شقق مفروشة من غرفة إلى ثلاث غرف نوم في البرج أ، صُممت بعناية لتوفر أعلى مستويات الراحة والأناقة العصرية. وبفضل موقعه المتصل مباشرة بجسر المشاة، ستنعم بسهولة الوصول إلى قلب المجتمع، مع الحفاظ على خصوصيتك وهدوئك على الواجهة المائية.

سواء كنت تستمتع بصباح هادئ على ضفاف القناة أو بنزهة مسائية على الممشى، فإن كل يوم هنا يجسّد تناغماً مثالياً بين الطبيعة والحياة العصرية، حيث الصفاء والراحة يرافقانك في كل لحظة.

img img

سيمفونية بصرية

img img
img img
img img
img img
Previous Slide
Icon of a next arrow

مخطط الطابق

غرفة نوم واحدة
2 غرفة نوم
3 غرف نوم

شقة بغرفة نوم واحدة (النوع أ)

  • الوحدة : 1 غرفة نوم + 1 حمام ضيوف + 1 بلكونة
  • جناح : 465.22 - 465.75 قدم مربع
  • بلكونة : 46.82 - 47.79 قدم مربع
  • الإجمالي : 509.56 – 514.30 قدم مربع
1 BR

شقة بغرفة نوم واحدة (النوع ب)

  • الوحدة : 1 غرفة نوم + 1 جناح + 1 تراس
  • جناح : 509.67 – 512.79 قدم مربع
  • تراس : 149.07 – 151.34 قدم مربع
  • الإجمالي : 658.97 – 662.14 قدم مربع
1 BEDROOM (TYPE B)

شقة بغرفة نوم واحدة (النوع ج)

  • الوحدة : 1 غرفة نوم + 1 حمام ضيوف + 1 فناء
  • جناح : 500.31 - 502.46 قدم مربع
  • فناء : 151.13 قدم مربع
  • الإجمالي : 651.43 - 653.58 قدم مربع
(Type C)

شقة بغرفة نوم واحدة (النوع د)

  • الوحدة : 1 غرفة نوم + 1 حمام ضيوف + 1 فناء
  • جناح : 512.15 قدم مربع
  • فناء : 79.76 قدم مربع
  • الإجمالي : 591.91 قدم مربع
1 BEDROOM (TYPE D)
Previous
Icon of a next arrow

2 شقة بغرفتي نوم (النوع أ)

  • الوحدة : 2 غرفة نوم + 2 بلكونة
  • جناح : 605.79 - 607.52 قدم مربع
  • بلكونة : 46.07 - 47.04 قدم مربع
  • الإجمالي : 651.86 - 654.34 قدم مربع
2 BEDROOM (TYPE A)

شقة بغرفتي نوم (النوع ب)

  • الوحدة : 2 غرفة نوم + 1 بلكونة
  • جناح : 623.55 - 631.63 قدم مربع
  • بلكونة : 50.70 - 51.56 قدم مربع
  • الإجمالي : 675.00 - 682.32 قدم مربع
2 BEDROOM (TYPE B)

شقة بغرفتي نوم (النوع ج)

  • الوحدة : 2 غرفة نوم + 1 بلكونة
  • جناح : 876.72 - 879.84 قدم مربع
  • بلكونة : 106.89 - 109.36 قدم مربع
  • الإجمالي : 985.44 - 989.10 قدم مربع
2 BEDROOM (TYPE C)

شقة بغرفتي نوم (النوع د)

  • الوحدة : 2 غرفة نوم + 1 حمام ضيوف + 1 بلكونة
  • جناح : 927.42 - 927.85 قدم مربع
  • بلكونة : 92.35 - 94.61 قدم مربع
  • الإجمالي : 1,019.88 - 1,022.03 قدم مربع
2 BEDROOM (TYPE D)
Previous
Icon of a next arrow

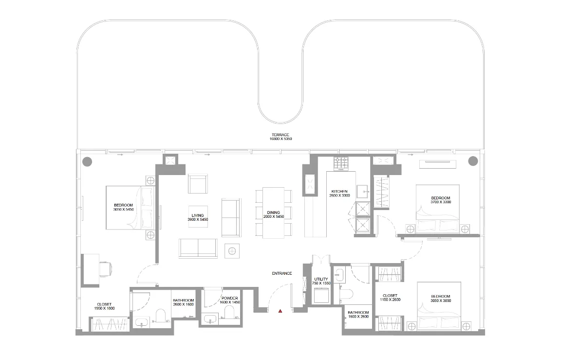
شقة من 3 غرف نوم (النوع أ)

  • الوحدة : 3 غرف نوم + 1 حمام ضيوف + 1 تراس
  • جناح : 1,299.42 - 1,299.53 قدم مربع
  • تراس : 874.46 - 874.89 قدم مربع
  • الإجمالي : 2,173.88 - 2,174.42 قدم مربع
3 BEDROOM (TYPE A)
Previous
Icon of a next arrow

الرفاهية بين يديك

مسبح إنفينيتي

مسبح إنفينيتي

LAGOON BEACH

شاطئ البحيرة

GOLF COURSE

ملعب غولف

YACHT CLUB WITH BOAT MOORING

نادي يخوت مع مراسٍ للقوارب

LUSH PARKS & LANDSCAPED GARDENS

حدائق خضراء ومساحات طبيعية مُنسّقة

Café and Retail

Café and Retail

مدارس
تسوّق
تناول الطعام
بقالة
معالم

حياة الجزيرة، بالقرب من الأساسيات

MARJAN ISLAND

جزيرة المرجان

10 دقائق
SHARJAH

الشارقة

30 دقيقة
DUBAI

دبي

50 دقيقة
Siniya Marina Residence Canalside Marina Residences
Close
إعادة الاتصال
اتصل بنا
واتساب
استفسر الآن
Up Arrow
notifiation